Cầu Bãi Cháy được khởi công ngày 18/5/2003 và thông xe ngày 02/12/2006, là cây cầu đạt kỷ lục thế giới về chiều dài nhịp chính lên đến 435m trong số các cầu dây văng một mặt phẳng dây có dầm chủ bằng bê tông dự ứng lực. Cầu Bãi Cháy nằm trên QL18, vượt qua Cửa Lục, nối khu du lịch Bãi Cháy với khu đô thị Hòn Gai của TP Hạ Long thuộc tỉnh Quảng Ninh.
Cây cầu vừa có ý nghĩa kinh tế - xã hội quan trọng nằm trên một địa bàn có tiềm năng du lịch quốc tế, vừa có yêu cầu đặc biệt vì cây cầu ở ngay khu vực vịnh Hạ Long được Hội đồng Di sản Thế giới của UNESCO công nhận là "Di sản thiên nhiên thế giới" với giá trị ngoại hạng toàn cầu về mặt thẩm mĩ vào năm 1994, về lịch sử địa chất và địa mạo caxtơ vào năm 2000 và được tổ chức New 7 Wonders tuyên bố là một trong bảy kỳ quan thiên nhiên thế giới mới vào năm 2011.
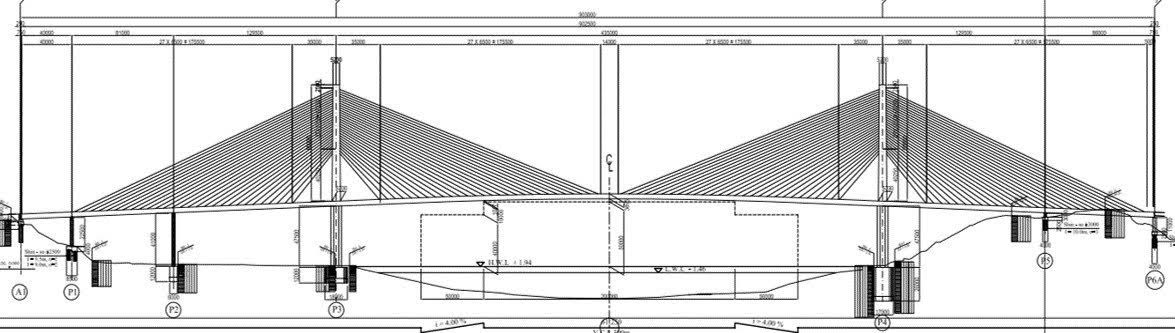
Cầu chính của dự án cầu Bãi Cháy được xây dựng là cầu dây văng một mặt phẳng dây gồm 6 nhịp. Tính từ mố phía Bãi Cháy là 1 nhịp dẫn, tiếp theo mỗi phía có một nhịp neo, một nhịp biên và chính giữa là một nhịp chính với sơ đồ nhịp: (36 + 86 +129,5 + 435 + 129,5 + 87) m = 903 m (ảnh). Hệ dây văng bố trí trên 1 mặt phẳng nằm chính giữa mặt cắt ngang của cầu. Dầm chủ là dầm hộp bê tông cốt thép dự ứng lực có cánh hẫng lớn, có các vách cứng theo thiết kế ban đầu bằng các thanh thép ống tại các mặt cắt neo cáp văng, được thi công bằng phương pháp đúc hẫng. Bề rộng cầu là 25,3 m gồm 4 làn xe cơ giới và 2 làn xe thô sơ. Cầu nằm trên đường đô thị cấp II có tốc độ thiết kế 80 km/h, tịnh không thông thuyền là 50 m.
Hai tháp cầu cao 90 m tính từ bệ trụ, trụ cầu chính cao 50 m được đặt trên hệ móng giếng chìm hơi ép kích thước (17,1 x 19,1 x 27) m. Móng giếng chìm hơi ép kích thước lớn này cùng với móng cọc Shinso lần đầu tiên được áp dụng tại Việt Nam.
Theo [1], ba trụ P2, P3 và P4 sử dụng móng giếng chìm hơi ép trong đó trụ P4 có kích thước móng giếng chìm hơi ép lớn nhất. Đáy móng hạ xuống sâu 27,66 m từ mặt đất thi công và xuống dưới mực nước biển lúc triều lên là 26,96 m. Các trụ còn lại và mố dùng móng cọc Shinso đường kính lớn Ф 2,5 m và Ф 3,0 m, thi công đào thủ công.
Thiết bị thi công giếng chìm cầu Bãi Cháy có độ tin cậy cao, công nghệ hợp lý, được điều khiển bởi những kỹ sư và thợ có chuyên cao. Mặt khác, quy trình lao động đảm bảo an toàn cao cho công nhân, có tính đến điều kiện của người Việt Nam, do vậy đã không hề có trường hợp tai nạn nào xảy ra. Về tốc độ thi công, cũng theo [1] thì giếng chìm hơi ép trụ P4 lớn nhất và khó khăn nhất được thi công trong thời gian 1 năm, độ sâu hạ giếng 27,7 m.
Cầu Bãi Cháy được xây dựng bằng nguồn vốn ODA của Chính phủ Nhật Bản do Bộ GTVT làm chủ đầu tư, BQLDA 18 là đại diện chủ đầu tư. Cầu được thiết kế và giám sát chất lượng bởi Viện Cầu và Kết cấu Nhật Bản (JBSI), chủ trì thiết kế là tiến sĩ Komiya Masashisa, chủ trì giám sát thi công với giám đốc dự án là KTS Yanagawa Haruo, nhà thầu là liên danh Shimizu-Sumitomo-Mitsui của Nhật Bản.
Với kết cấu thanh thoát, mảnh mai, bay bổng, cầu Bãi Cháy còn là một tác phẩm kiến trúc hiện đại, xứng danh là "Cung đàn Hạ Long" - một kỳ quan mới được tạo dựng từ trí tuệ, công sức của con người, rất hài hòa với cảnh quan của vịnh Hạ Long, kỳ quan của tạo hóa, đã 2 lần được vinh danh là Di sản Thế giới, là một trong bảy kỳ quan thiên nhiên mới.
Do các điều kiện tự nhiên như địa chất, thủy văn, môi trường… rất phức tạp cũng như các yêu cầu kỹ thuật cao, kinh phí đầu tư xây dựng lớn… nên thời gian kể từ khi bắt đầu nghiên cứu chuẩn bị đầu tư cho đến khi đưa vào khai thác là khá dài, đến hơn 10 năm.

Sơ đồ kết cấu nhịp cầu Bãi Cháy (sưu tầm).
Đề xuất ban đầu là cầu Extradosed vượt nhịp chính 350 m
Tháng 5/1998, tôi đi dự Hội nghị quốc tế lần thứ 13 về bê tông dự ứng lực ở Amsterdam - Hà Lan. Đây cũng là hội nghị có nội dung lịch sử là hợp nhất Ủy ban Bê tông cốt thép châu Âu (CEB) với Liên đoàn bê tông dự ứng lực quốc tế (FIP) thành Liên đoàn Bê tông quốc tế (FIB). Tại hội nghị này, cây cầu Tsukuhara trên cao tốc Sanyo nối Miki và Kobe được đưa vào sử dụng tháng 5/1998 là cầu Extradosed có nhịp chính 180 m là nhịp lớn nhất đối với loại cầu này lúc bấy giờ, sử dụng neo yên ngựa và hệ neo của bê tông dự ứng lực nhưng bố trí giảm chấn tại neo, đã nhận được huy chương của FIB.
Thế nhưng, cũng tại thời điểm nay, tư vấn JBSI đã đề xuất phương án sử dụng cầu Extradosed có nhịp chính lên đến… 350 m để làm phương án chính cho cầu Bãi Cháy. Hồ sơ đã được Bộ GTVT trình lên Hội đồng thẩm định cấp Nhà nước do GS Đỗ Quốc Sam làm Chủ tịch. Rất may là tại Hội nghị khoa học về cầu dây văng do Viện Thiết kế Giao thông tổ chức tại Nhà Rùa của khu nghỉ mát Hồ Tây, tôi đã gặp được thầy GS Đỗ Quốc Sam. Tôi đã trình bày ngay với GS Đỗ Quốc Sam về khả năng vượt nhịp tại thời điểm đó của loại hình cầu Extradosed cũng như thông tin về cầu Tsukuhara vượt nhịp chính 180 m vừa được nhận huy chương của FIB.
Sau khi phương án cầu Extradosed không được Hội đồng thẩm định cấp Nhà nước chấp thuận, các chuyên gia Nhật Bản của tư vấn dự án đề xuất phương án đã đến tận phòng làm việc của tôi ở Bộ GTVT và chất vấn tôi rất gay gắt. Họ nói đại ý là tại sao tôi là người có trách nhiệm và nghĩa vụ phải đưa các tiến bộ khoa học công nghệ mới nhất của thế giới trong lĩnh vực xây dựng giao thông vào áp dụng tại Việt Nam mà lại phản đối việc đưa loại cầu Extradosed vào để xây dựng cầu Bãi Cháy. Chỉ đến khi tôi cho họ biết là tôi vừa đi dự hội nghị của FIB ở Hà Lan về và thông tin cho họ về cầu Tsukuhara vừa được nhận huy chương của FIB ở Amsterdam cả bằng hình ảnh kèm theo, họ mới thôi chất vấn.
Vấn đề tốc độ gió cơ bản
Sau khi tiến hành kiểm tra hồ sơ thiết kế kỹ thuật của phần cầu chính, các chuyên gia trong Tiểu ban Kỹ thuật của Hội đồng nghiệm thu Nhà nước (HĐNTNN) đối với công trình cầu Bãi Cháy đã phát hiện thấy ngay cả ý kiến thẩm định thiết kế do Hội Cầu đường phản biện cũng chưa được đáp ứng đầy đủ và chưa được phản hồi. Có chuyên gia cho rằng phía chủ đầu tư còn quá tin tưởng vào chất lượng thiết kế của tư vấn Nhật Bản, chưa coi trọng nhiều ý kiến của các chuyên gia cầu Việt Nam [2].
Đầu năm 2004, HĐNTNN đã gửi báo cáo Thủ tướng Chính phủ đề nghị phải mời một tổ chức tư vấn độc lập thẩm tra lại Hồ sơ thiết kế cầu Bãi Cháy. Ngày 23/02/2004, Cục Giám định và Quản lý chất lượng công trình giao thông (Cục Giám định - CGĐ) của Bộ GTVT đã tổ chức một cuộc họp do Cục trưởng Nguyễn Ngọc Long chủ trì để bàn về yêu cầu này. Theo "Meeting Minutes" [4] của tư vấn JBSI, các thành viên tham gia cuộc gồm Phó Cục trưởng CGĐ Trịnh Xuân Cường và các chuyên viên, Vụ trưởng Vụ KHCN Bộ GTVT Tống Trần Tùng, Chủ tịch HĐQT Tổng công ty Tư vấn thiết kế GTVT (TEDI) Chu Ngọc Sủng, đồng Giám đốc kỹ thuật giai đoạn thiết kế Đinh Quốc Kim, Phó TGĐ PMU 18 Đỗ Kim Quý cùng các chuyên viên của PID 6. Phía tư vấn JBSI gồm Giám đốc dự án Komiya và ông Namba - Giám đốc điều hành Ynagawa. Phía nhà thầu là Phó Giám đốc dự án Yamajaki và Giám đốc điều hành Ohba.
Cục trưởng CGĐ Nguyễn Ngọc Long tuyên bố mục đích cuộc họp xuất phát từ việc báo cáo của HĐNTNN gửi Thủ tướng Chính phủ. Do vậy, CGĐ thay mặt Bộ GTVT cần dự thảo báo cáo làm rõ để Thứ trưởng Bộ GTVT Nguyễn Việt Tiến ký văn bản báo cáo Thủ tướng [4].
Mở đầu cuộc họp, ông Đỗ Kim Quý khẳng định nhà tư vấn tốt nhất đã được chọn. Để hồ sơ thiết kế được phê duyệt, 30 cuộc họp đã được tổ chức với sự tham gia góp ý của các giáo sư đầu ngành. Nhà thầu đã căn cứ vào Hợp đồng chịu trách nhiệm kiểm tra thiết kế với kinh phí khoảng 24 tỷ đồng. PMU 18 cho rằng việc kiểm tra thiết kế đã được tiến hành với đội ngũ thiết kế giàu kinh nghiệm của nhà thầu đã được Tư vấn JBSI phê duyệt. Do đó, không cần thiết phải mời tư vấn độc lập thẩm tra lại hồ sơ thiết kế.
Về phía Tư vấn, ông Komiya quả quyết "Nhà thầu có đủ kinh nghiệm để kiểm tra thiết kế. Không cần thiết phải sử dụng bên thứ ba".
"Meeting Minutes" còn cho biết, ông Nguyễn Ngọc Long chủ trì cuộc họp khẳng định: "Trong báo cáo gửi Thủ tướng, chúng tôi sẽ phải đề cập đến kết quả tư vấn JBSI kiểm tra các hoạt động đang diễn ra của nhà thầu SMZ và nên chỉ rõ cho HĐNTNN rằng Bộ GTVT đã làm những việc cần thiết và làm cẩn thận".
Không đồng ý với các quan điểm trên, tôi cho rằng "Việc thiếu thông tin và tài liệu không phải là vấn đề chính mà là vấn đề kỹ thuật. Tốc độ gió cơ bản từ 50 m/s xuống 45 m/s. Vấn đề ở đây là gì?... Các ý kiến bất đồng đã nảy sinh nhưng vẫn được chưa được giải quyết dứt điểm. HĐNTNN cùng JBSI và nhà thầu nên làm việc cùng nhau và làm rõ tất cả các vấn đề kỹ thuật cần phải giải quyết".
Sau ý kiến của tôi, nội dung cuộc họp đã thay đổi theo hướng khác. Ông Komiya cho biết JBSI đã kiểm tra thiết kế và đối với cầu chính thì không có vấn đề gì. Thế nhưng khi ông Long đặt câu hỏi tại sao nhà thầu ZMZ lại đề xuất tăng lượng thép thì ông Komiya cho biết phía tư vấn không đồng ý. Còn ông Quý thì khẳng định là về mặt kỹ thuật theo ông ta là không cần thiết.
Khi ông Long yêu cầu vấn đề này phải được làm rõ trong báo cáo của Bộ GTVT thì ông Komiya cho biết nhà thầu SMZ đã đệ trình báo cáo kết quả thí nghiệm hầm gió để tư vấn JBSI kiểm tra và phát hiện có sự khác biệt do thay đổi điều kiện thiết kế. Do vậy, nhà thầu SMZ phải gửi lại bản sửa đổi.
Ông Long nhấn mạnh rằng lý thuyết tính toán và điều kiện thiết kế (dữ liệu đầu vào) phải được xác nhận giữa nhà thầu SMZ và tư vấn JBSI, bằng không khi sập cầu (nếu xảy ra) sẽ được coi là bị thiếu dữ liệu đầu vào nào đó và nhà thầu SMZ, khi phát hiện bất kỳ sự khác biệt nào trong dữ liệu đầu vào, phải thông báo cho các bên liên quan.
Tôi đành phải nêu rõ vào ngày 20/3/1999 và tháng 10/1999 (nghĩa là 5 năm về trước), Vụ Khoa học Công nghệ (KHCN) đã gửi công văn cho ông Komiya về những vấn đề liên quan đến tiêu chuẩn áp dụng cho dự án cầu Bãi Cháy nhưng chưa nhận được bất kỳ phản hồi nào từ JBSI. Thế là ông Kim khẳng định ngay rằng câu trả lời đã được đưa ra vào ngày 01/6/1999, trong đó tải trọng gió sử dụng cho cầu Bãi Cháy cao hơn các cây cầu khác ở Nhật Bản, nó an toàn và phía tư vấn đã kiểm tra.
Tôi không đồng ý với các quan điểm trên và cho biết Vụ KHCN chúng tôi và CGĐ chịu trách nhiệm về các vấn đề kỹ thuật cầu Bãi Cháy chứ không phải HĐNTNN. Vụ chúng tôi đã không nhận được bất cứ cái gì cả.
Ông Long chủ trì cuộc họp đã yêu cầu ông Quý phải kiểm tra lại các công văn và Ban QLDA phải làm rõ những vấn đề sau trong báo cáo gửi Bộ GTVT:
- Phương án kiểm tra lại thiết kế;
- Kết quả kiểm tra công việc (giếng chìm, độ ổn định, dữ liệu đầu vào);
- Kiểm tra lại tiêu chuẩn áp dụng cho Dự án và phải được Bộ GTVT chấp thuận;
- Ban QLDA 18 phải trình kế hoạch bảo trì và chuyển giao công nghệ.
Thế nhưng, hơn một tháng sau cuộc họp nói trên, các vấn đề do HĐNTNN yêu cầu vẫn chưa được giải quyết.
Mãi đến sau cuộc họp do Chủ tịch HĐNTNN, Bộ trưởng Bộ Xây dựng Nguyễn Hồng Quân chủ trì, những vấn đề này mới được tháo gỡ. Bộ trưởng Nguyễn Hồng Quân đã yêu cầu Bộ GTVT phải tiếp thu các ý kiến của Hội đồng và chịu trách nhiệm của mình về các quyết định về số liệu đầu vào và các thông số thiết kế liên quan theo đúng các quy định hiện hành chứ HĐNTNN không có trách nhiệm quyết định thay.
Từ kết luận nói trên của Chủ tịch HĐNTNN, ngày 02/4/2004, bằng văn bản số 64/TB.VPCP, Thủ tướng Chính phủ đã đề cập đến việc kiểm tra lại thiết kế cầu Bãi Cháy.
Đến lúc này, lãnh đạo PMU18 mới đề nghị tôi trình lãnh đạo Bộ GTVT quyết định thay đổi số liệu đầu vào liên quan đến tốc độ gió cơ bản và các hệ số tải trọng sử dụng… đáp ứng các văn bản quy định của Việt Nam đối với các thông số này, đặc biệt là tốc độ gió cơ bản tại vị trí xây dựng cầu Bãi Cháy để thay thế các giá trị mà phía tư vấn JBSI đã thống nhất với PMU 18 trước đây cũng như họ đã từng khẳng định "tải trọng gió sử dụng cho cầu Bãi Cháy cao hơn các cây cầu khác ở Nhật Bản, nó an toàn và phía tư vấn đã kiểm tra".
Gọi là thay đổi nhưng thực chất là phải áp dụng các các số liệu đã được qui định trong các văn bản pháp qui và các tiêu chuẩn đã được công bố bắt buộc áp dụng mà Vụ KHCN (Bộ GTVT) đã nêu ra trong công văn gửi tư vấn JBSI và PMU18 trước đây vào tháng 3 và tháng 10/1999 như đã nêu ở trên. Theo đó, Bộ GTVT đã ban hành Quyết định số 2193/QĐ-BGTVT về thay đổi số liệu đầu vào liên quan đến tốc độ gió tính toán và các hệ số tải trọng sử dụng… Thực hiện yêu cầu của Quyết định này, PMU18 đã có văn bản yêu cầu tư vấn thiết kế Nhật Bản thẩm tra lại hồ sơ thiết kế cầu Bãi Cháy.
Sửa đổi thiết kế đáp ứng các yêu cầu của Quyết định số 2193/QĐ-BGTVT
Theo [2] thì sau khi tư vấn thẩm tra và tư vấn thiết kế tính toán lại đã thống nhất một số điều chỉnh cần thiết như sau:
- Tăng thêm thép cho cả 3 móng giếng chìm hơi ép là 76 tấn và bố trí sắp xếp lại vị trí các thanh cốt thép cho hợp lý hơn, dựa trên kết quả tính toán theo phương pháp phần tử hữu hạn.
- Cáp dự ứng lực ngang mặt cầu theo thiết kế cũ là 1.523 tao, được bổ sung thêm 193 tao (khoảng 18,8 tấn) và điều chỉnh khoảng cách tao cáp cục bộ tại vị trí neo.
- Bố trí dầm dọc liên tục suốt chiều dài cầu. Ụ các thanh chống chéo ở bản đáy được nối liền với nhau tạo ra một khung ngang đủ truyền lực hợp lý, từ các dây văng xuống dầm cầu chính.
- Cáp dự ứng lực dọc tại bản cánh trên của dầm cầu giảm 10 bó cáp 12 tao T13 ở khối Ko, nhưng phải tăng thêm 52 thanh dự ứng lực d = 32 mm ở các khối đúc hẫng khác.
- Để giảm bớt lực gió tác dụng lên hệ dây văng, đường kính ống ghen của các bó cáp được giảm từ (250 - 180 mm) xuống còn (200 - 150 mm).
- Thép tròn thân trụ cầu chính tăng thêm 8,2 tấn, (từ 770 tấn lên 778,2 tấn).
- Bê tông khối Ko trên đỉnh trụ và tháp cầu sử dụng cấp độ bền 55 Mpa thay cho cấp 45 Mpa trong thiết kế cũ.
- Các thanh chống chéo bằng thép ống tròn trong lòng dầm, tại 224 vị trí neo dây văng, cần được thay bằng các ống thép hình vuông, có thành dày 16 mm, diện tích gần gấp đôi; đồng thời thay các thanh dự ứng lực đường kính 32 mm bằng cáp 12 tao T15, với lực nén trước gấp hai lần thiết kế cũ (1.200 - 1.700 kN thay cho 666,4 kN).
- Riêng hai tháp, cần tăng thêm 165 tấn thép đặc chủng đường kính 51 mm và bố trí thêm hai lớp cáp 12 tao T13 (hơn 50 tấn cáp dự ứng lực), đồng thời bố trí thêm hệ thống giảm chấn loại TLD (tuned liquid damper) trong lòng tháp.
- Về chiều dày lớp bê tông bảo vệ cốt thép, vì yêu cầu thiết kế lại với dữ liệu đầu vào mới (sau khi có kết quả thí nghiệm mẫu thử tại Viện Khoa học công nghệ Xây dựng và tại công trường), đã lấy như sau:
+ Đối với tháp: Lớp bảo vệ tăng tới 44 mm;
+ Đối với dầm: Từ 35 lên 45 mm (bản đáy và sườn dầm), nếu không đủ, phải quét lớp sơn epoxy bảo vệ;
+ Đối với trụ vẫn để lớp bảo vệ dày 5 mm;
+ Đối với bản cánh trên, lớp cốt thép trên cùng, vì đã có lớp áo đường bảo vệ thì vẫn để lớp này dày 35 mm như thiết kế cũ.
Trong một cuộc họp mà tôi được tham dự, tư vấn cho biết móng giếng chìm đã thi công xong trước khi điều chỉnh thiết kế. Do vậy, họ chỉ có thể bổ sung cốt thép tròn cho 2 thân trụ cầu chính P3 và P4. Do không thể mở rộng kích thước mặt cắt ngang của 2 trụ chính này nên các cốt thép tròn bổ sung đã được họ bố trí bên trong phần lõi của trụ. Tôi cho rằng việc bổ sung và bố trí cốt thép như vậy là rất không hợp lý vì sẽ tăng cường không đáng kể kháng uốn của trụ và yêu cầu tư vấn phải kiểm tra lại khả năng chịu lực của 2 trụ này với sơ đồ bố trí cốt thép của họ. Kết quả xử lý sau đó của các bên như thế nào thì tôi không có thông tin. Tôi chỉ nghe nói là các trụ chính này về sau đã được bọc bên ngoài bằng một lớp thép dày đến mấy chục milimét để chống va xô của tàu thủy (?).
Chuyện cắm biển cấm xe trên 30T qua cầu Bãi Cháy
Vào một ngày hạ tuần tháng 11/2006, trên chuyến bay từ TP. Hồ Chí Minh ra Hà Nội, tôi đọc được một bài báo với dòng tít đại thể là cầu Bãi Cháy chuẩn bị thông xe nhưng nỗi lo còn đó. Bài báo cho biết, ở hai đầu cầu Bãi Cháy đang được hoàn thiện để chuẩn bị khánh thành, cơ quan chức năng đã cho cắm biển cấm xe trên 30T qua cầu. Thế thì những xe tải có tổng trọng lượng xe và hàng lớn hơn 30 tấn khá phổ biến ở vùng mỏ Quảng Ninh và xe container vẫn được phép lưu thông trên mạng đường bộ Việt Nam theo qui định của Bộ GTVT khi lưu thông trên QL18 sẽ qua vịnh Cửa Lục bằng cách nào?
Sau khi xuống sân bay Nội Bài, tôi về thẳng cơ quan Bộ để tìm hiểu tại sao lại có chuyện này. Chuyên viên Nguyễn Trọng Phú của Vụ KHCN phụ trách theo dõi dự án cầu Bãi Cháy cho tôi biết do việc thiết kế cầu Bãi Cháy phải tuân thủ cả theo Tiêu chuẩn thiết kế cầu 22TCN 18-79 của Việt Nam với tải trọng thiết kế H30-XB80 nên tư vấn JBSI đã đưa qui định cắm biển cấm xe 30T qua cầu vào trong Quy trình Bảo trì và khai thác cầu Bãi Cháy. Quy trình cũng đã được Thứ trưởng Bộ GTVT Ngô Thịnh Đức ký phê duyệt. Tôi gọi điện thoại ngay cho Thứ trưởng Bộ GTVT Ngô Thịnh Đức, báo cáo sự việc với anh và hỏi anh có còn giữ bản gốc của Quy trình không thì anh cho biết chỉ giao quyết định cho các bên liên quan, còn bản gốc thì anh vẫn giữ. Tôi đề nghị anh chưa cho phát hành bản Quy trình này và anh đồng ý ngay.
Ngay sáng hôm sau đó có một cuộc họp liên qua đến vấn đề khác do Thứ trưởng Bộ GTVT Ngô Thịnh Đức chủ trì và có sự tham gia của anh Mai Văn Đức - Cục trưởng Cục Đường bộ Việt Nam (CĐBVN) và anh Trịnh Xuân Cường - Phó Cục trưởng CGĐ. Vừa gặp tôi, anh Cường đã bức xúc kể cho tôi nghe về cuộc họp chuẩn bị khánh thành cầu Bãi Cháy vừa tổ chức ở Quảng Ninh có chuyện vô lý về việc yêu cầu cắm biển P.115 cấm xe trên 30T qua cầu. Anh Mai Văn Đức còn cho biết nếu xe trên 30T không được qua cầu thì CĐBVN phải giữ bến phà để chở các xe này.
Tôi khẳng định là sẽ phải nhổ ngay cái biển cấm xe trên 30T qua cầu và đặt câu hỏi là các cầu trên QL18, nhất là cầu Phả Lại mới được xây dựng vừa qua có cắm biển cấm xe trên 30T không? Trước khi bắt đầu cuộc họp, Thứ trưởng Bộ GTVT Ngô Thịnh Đức đã giao ngay nhiệm vụ cho Cục trưởng Mai Văn Đức phối hợp với Vụ KHCN làm việc với PMU 18, với tư vấn JBSI về vấn đề này.
Mấy ngày sau, tôi nhận được giấy mời của CĐBVN sang họp bàn về việc này với các bên liên quan. Tôi cố tình đi muộn một chút làm anh Phú cứ thắc mắc hoài.
Khi tôi và anh Phú bước chân vào phòng họp thì đã có mặt đầy đủ các bên liên quan. Về phía Cục Đường bộ Việt Nam, ngoài Cục trưởng Mai Văn Đức còn có Phó Cục trưởng Lê Vạn Thắng và lãnh đạo các phòng, ban liên quan như Trưởng ban Giao thông Đường bộ (GTĐB) Vũ Ngọc Khuê… Về phía PMU 18 có Phó TGĐ phụ trách Đoàn Văn Chiêm (vì lúc này vụ PMU 18 vừa xảy ra một số vấn, một số lãnh đạo và cán bộ của PMU 18 đang bị khởi tố điều tra), Phó TGĐ Đỗ Kim Quý và lãnh đạo, chuyên viên PID6. Về phía Tư vấn JBSI, tôi không thấy ông Komiya có mặt mà chỉ thấy mấy ông người Nhật Bản mà tôi không biết tên cùng phiên dịch và đồng Giám đốc dự án Vũ Hữu Hoàng.
Cục trưởng Mai Văn Đức vừa nói đại ý hội nghị chỉ chờ mình tôi và nay cuộc họp xin được bắt đầu thì tôi xin lỗi Cục trưởng và đề nghị không cần tổ chức cuộc họp này vì phía tư vấn JBSI chưa có văn bản trả lời chính thức về việc bỏ qui định cắm biển cấm xe trên 30T qua cầu trong dự thảo Qui trình quản lý khai thác cầu Bãi Cháy do họ soạn thảo. Tôi quay sang phía mấy ông đại diện cho tư vấn JBSI yêu cầu gay gắt họ phải có thư đề nghị Văn phòng JBSI ở Tokyo có công văn trả lời chính thức về vấn đề này. Không hiểu vì lý do gì mà phiên dịch của họ không dịch yêu cầu của tôi, tôi bèn chuyển sang dùng vốn tiếng Anh ít ỏi của mình yêu cầu trực tiếp với mấy ông đại diện của JBSI.
Đồng giám đốc tư vấn dự án Vũ Hữu Hoàng liền đứng dậy giải thích với tôi đại ý vì việc thiết kế cầu Bãi Cháy phải tuân thủ cả theo Tiêu chuẩn thiết kế cầu 22TCN 18-79 của Việt Nam với tải trọng thiết kế H30-XB80 nên tư phải đưa qui định cắm biển P.115 cấm xe 30T.
Tôi hỏi lại đại ý thế tại sao các cầu khác trên QL18 nói riêng và một loạt các cầu được xây dựng mới vừa qua không cắm biển cấm xe trên 30T và thay mặt Bộ GTVT tôi nhắc lại yêu cầu phía Văn phòng JBSI ở Tokyo phải có công văn trả lời chính thức về vấn đề này.
Trưởng ban GTĐB Vũ Ngọc Khuê đứng bật dậy và gay gắt chất vấn tôi đại ý là Thứ trưởng Bộ GTVT Ngô Thịnh Đức đã ký duyệt Quy trình quản lý khai thác cầu Bãi Cháy, trong đó có quy định cắm biển cấm xe trên 30T qua cầu và nhấn mạnh đó là văn bản pháp quy kỹ thuật. Chừng nào Quy trình này chưa bị thu hồi hay thay thế thì chẳng có gì phải bàn cả.
Tôi hỏi lại anh Khuê là ai đã cấp cho anh bản Quy trình đó thì anh ấy nói ngay là PMU 18. Tôi quay sang anh Chiêm và giải thích cho anh ấy biết là chỉ có bản Quy trình có đầy đủ chữ ký ở tất cả các trang của những người trình duyệt ở Vụ KHCN mới có giá trị pháp lý. Và Thứ trưởng Bộ GTVT Ngô Thịnh Đức chưa chuyển lại bản Quy trình đó cho Vụ KHCN để Vụ phát hành, tức là nhân bản rồi chuyển cho các bên liên quan. Mục đích của những yêu cầu của chúng tôi đối với tư vấn JBSI là để hủy bỏ quy định cắm biển cấm xe trên 30T qua cầu rồi mới phát hành. PMU 18 không có quyền nhân bản bằng cách in dự thảo của tư vấn JBSI phân phát cho các bên liên quan.
Cục trưởng Mai Văn Đức thống nhất với các ý kiến của tôi và nhắc lại đề nghị đối với phía tư vấn JBSI trong 1 tuần phải có thư trả lời chính thức của Văn phòng Tokyo về vấn đề này. Cuộc họp chỉ diễn ra chưa đầy 30 phút. Một tuần sau, tôi nhận được thông tin là Văn phòng Tokyo của JBSI đã có công văn trả lời chính thức về vấn đề này. Thứ trưởng Bộ GTVT Ngô Thịnh Đức đã yêu cầu tổ chức cuộc họp với các chuyên gia đầu ngành về lĩnh vực thiết kế, xây dựng cầu để giải quyết vấn đề biển cấm xe trên 30T không được đi qua cầu Bãi Cháy do tôi chủ trì. Cuộc họp đã được tổ chức với sự tham gia của các giáo sư Lê Văn Thưởng, Phan Vỵ Thủy, Đào Xuân Lâm, Phan Duy Pháp, Nguyễn Viết Trung, Trần Đức Nhiệm… và các chuyên gia như Chu Ngọc Sủng, Trịnh Xuân Cường… Tại cuộc họp, Phó TGĐ phụ trách PMU 18 Đoàn Văn Chiêm đã công bố công văn chính thức của Văn phòng chính của JBSI ở Tokyo có nội dung chính là cầu Bãi Cháy có thể cho phép xe đến 200T đi qua!
Thế là không cần họp nữa và biển cấm xe trên 30T cắm hai đầu cầu Bãi Cháy đã được dỡ bỏ. Còn nhiều chuyện khác nữa liên quan đến cây cầu này nhưng do khuôn khổ của bài viết, xin được hầu chuyện độc giả vào một dịp khác.
Tài liệu tham khảo
[1]. PGS.TS Phan Vỵ Thủy (2007), Cầu Bãi Cháy - một số vấn đề về khoa học - công nghệ, Tạp chí Cầu Đường, số 1-2.
[2]. Trang tin điện tử Liên hiệp các Hội Khoa học và Kỹ thuật Việt Nam (12/04/2010), Bài học rút ra từ công tác thiết kế và thẩm định cầu Bãi Cháy.
[3]. Báo KHPT của LHHKHKT TP. Hồ Chí Minh (14/10/2013), Bãi Cháy - cây cầu mang kỷ lục chưa từng có trên thế giới.
[4]. Meeting Minutes. Venue: TCQM office. Time 14pm on 23 February 2004.
Cách đây 30 năm, ngày 06/5/1995, nguyên Thủ tướng Phạm Văn Đồng, Cố vấn Ban chấp hành Trung ương Đảng đã tiếp Ban chủ nhiệm đề tài khoa học: Tư tưởng Hồ Chí Minh với sự nghiệp xây dựng và phát triển GTVT Việt Nam. Nhân Kỷ niệm 80 năm Ngày truyền thống ngành GTVT 28/8/1945 - 28/8/2025, chúng tôi xin trân trọng gới thiệu cùng bạn đọc một số trích đoạn góp ý chân tình và sâu sắc của nguyên Thủ tướng Phạm Văn Đồng về công tác đào tạo cán bộ khoa học kỹ thuật của ngành GTVT nói chung, của Trường Đại học GTVT nói riêng.
Tiếp nối 80 năm truyền thống vẻ vang của ngành GTVT, Phó Thủ tướng Chính phủ Nguyễn Chí Dũng chỉ ra rằng, Bộ Xây dựng đang có cơ hội lớn để tạo bứt phá hạ tầng, mở ra không gian phát triển mới cho đất nước, tạo nền tảng quan trọng để dân tộc vững bước tiến vào kỷ nguyên vươn mình.
Tái chế vật liệu cào bóc mặt đường bê tông asphalt (Reclaimed Asphalt Pavement - RAP) đang ngày càng được sử dụng nhiều, vì hiệu quả đem lại về mặt kinh tế, kỹ thuật và môi trường. Trong đó, công nghệ tái chế nguội vật liệu RAP tại trạm trộn di động là giải pháp công nghệ được nhiều nhà thầu lựa chọn hiện nay ở Mỹ, Trung Quốc, Nhật Bản...
Cầu Nhật Tân được khánh thành đưa vào khai thác tháng 1/2015 và trở thành một trong số rất ít cầu dây văng liên tục nhiều nhịp trên thế giới. Ngoài công nghệ thi công cầu dây văng nhiều nhịp, phần cầu chính còn áp dụng công nghệ tiên tiến lần đầu được ứng dụng ở Việt Nam như công nghệ hộp neo bằng thép trên trụ tháp, hệ thống quan trắc theo dõi với nhiều thiết bị hiện đại như đo lực căng cáp văng, đo ứng suất cốt thép, dầm thép… và đặc biệt là kết cấu móng vòng vây cọc ống thép.
Công nghệ thi công hầm ở Việt Nam đã có những bước tiến đáng kể, từ việc tiếp thu và làm chủ các công nghệ hiện đại như NATM và TBM, đến việc sáng tạo, cải tiến để phù hợp với điều kiện địa chất và kinh tế của Việt Nam. Đội ngũ kỹ sư, công nhân người Việt Nam đã kế thừa, làm chủ công nghệ khoan hầm tiên tiến, kiểm soát rủi ro công nghệ hiện đại như NATM.
Cầu Thăng Long xây dựng từ năm 1974 và được đưa vào sử dụng từ tháng 5/1985. Cầu Thăng Long là một trong những công trình giao thông huyết mạch phía Bắc Hà Nội, có thiết kế hai tầng, tầng dưới dành cho đường sắt và tầng trên cho ô tô với 4 làn xe và 2 làn đi bộ. Với kết cấu bản mặt cầu bằng thép và dầm trực giao trên hệ giàn thép, cầu Thăng Long hiện là cầu hai tầng duy nhất tại Việt Nam.
Bình luận
Thông báo
Bạn đã gửi thành công.